Двухэтажный дом «Кармен»
Базовая
Без отделки
Под чистовую
7 431 000 ₽
* актуальность цен уточняйте у менеджера
О проекте
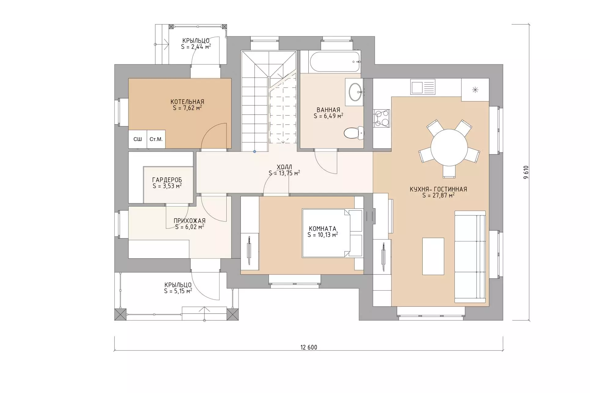
Проект "Кармен" привлекает внимание за счет интересного архитектурного решения. Этот дом отлично подойдет для большой семьи, которая любит принимать гостей.
На первом этаже разместились просторная кухня-гостиная, гостевая спальня и технические помещения.
Второй этаж отведён под жилую зону. Здесь разместились 3 спальни, две из них имеют личные гардеробные, что создает уютную атмосферу, а наличие 3 санузлов служит для создания комфортной среды в доме.
Двухэтажный дом «Кармен»
Комплектация дома
Базовая
Без отделки
Под чистовую
| Свайно–ростверковый на забивных железобетонных сваях С 30.20 (высота ростверка ≥ 400 мм, размер сваи - 200*200*3000мм) | + | + | + |
| Внешние несущие стены из газобетона 625*250*300 D300 Внутренние несущие стены из газобетона 625*250*250 D400 и/или 625*250*300 D300 | + | + | + |
| Облицовка фасада | - | + | + |
| Крыльцо с бетонными ступенями и навесом | + | + | + |
| Терраса крытая, не остекленная, с деревянными окрашенными стойками (если предусмотренно проектом) | + | + | + |
| Отделка цоколя и ступеней крыльца | - | - | - |
| Входная металлическая дверь | - | + | + |
| Железобетонные пустотные плиты перекрытия | + | + | + |
| Стропильная система, обработанная огнебиозащитными составами. Гидро–ветрозащита | + | + | + |
| Покрытие - профиль декоративный Монтерра-X по деревянным стропилам, с защитой от гниения и возгорания | + | + | + |
| Обшивка фронтонных и карнизных свесов перфорированными пластиковыми софитами | - | + | + |
| Водосточная система из ПВХ | - | + | + |
| Снегозадержатели | - | + | + |
| Минераловатный утеплитель толщиной 200 мм | - | + | + |
| Пластиковые окна с двухкамерными стеклопакетами, профиль 70 мм | - | + | + |
| Пластиковые подоконники | - | - | + |
| Уличные отливы, окрашенные в цвет профиля | - | + | + |
| Вентиляционные выходы с утеплением | - | + | + |
| Система вентиляции из ПВХ | - | - | + |
| Кирпичный каминный дымоход с декоративным колпаком | - | - | - |
| Котел (газовый либо электрический) | - | - | + |
| Алюминиевые секционные радиаторы отопления | - | - | + |
| Водяные теплые полы (для ГАЗОВЫХ котлов) в местах укладки напольной плитки (кроме котельной) | - | - | + |
| Вывод питающего медного кабеля в доме | + | + | + |
| Контур заземления | - | - | + |
| Разводка электрических и ТВ кабелей внутри дома с установленными подрозетниками | - | - | + |
| Электрощит внутри дома с автоматами | - | - | + |
| Карболитовые патроны с лампочками | - | - | + |
| Розетки и выключатели | - | - | - |
| Вывод водопроводной трубы в котельной (от колодца) | + | + | + |
| Выводы ГВС и ХВС в местах установки сантехнических приборов | - | - | + |
| Магистральный фильтр очистки воды | - | - | + |
| Гидроаккумулятор с блоком автоматики | - | - | + |
| Ванна, смеситель для ванны и душевая кабина | - | - | - |
| Унитаз | - | - | - |
| Раковина с пьедесталом | - | - | - |
| Смесители для раковин | - | - | - |
| Вывод канализационной трубы от котельной до внешнего края фундамента (+1 м) | + | + | + |
| Станция биологической очистки на 5 человек постоянного проживания | - | - | + |
| Штукатурка стен с армированием стеклотканевой сеткой | - | - | + |
| Стяжка полов с утеплением и гидроизоляцией | - | - | + |
| Межкомнатные перегородки из газобетона 625*250*100 D400 | - | - | + |
| Армирование внешних углов | - | - | + |
| Шпатлевка стен в 2 слоя со шлифовкой | - | - | + |
| Пластиковые откосы окон и входных дверей | - | - | + |
| Окраска стен в 2 слоя | - | - | - |
| Натяжные потолки | - | - | - |
| Межкомнатные двери в комплекте с ручками, петлями, доборами и наличниками | - | - | - |
| Межэтажная деревянная лестница без окраски | - | - | - |
| Плинтуса из ПВХ с кабель–каналом | - | - | - |
| Ламинат (класс не менее 32) | - | - | - |
| Плитка напольная | - | - | - |
| Плитка настенная | - | - | - |
| Порожки | - | - | - |
Базовая
Без отделки
Под чистовую
Входит в комплектацию
- Свайно–ростверковый на забивных железобетонных сваях С 30.20 (высота ростверка ≥ 400 мм, размер сваи - 200*200*3000мм)
Входит в комплектацию
- Внешние несущие стены из газобетона 625*250*300 D300
Внутренние несущие стены из газобетона 625*250*250 D400 и/или 625*250*300 D300 - Крыльцо с бетонными ступенями и навесом
- Терраса крытая, не остекленная, с деревянными окрашенными стойками (если предусмотренно проектом)
- Облицовка фасада
- Отделка цоколя и ступеней крыльца
- Входная металлическая дверь
Входит в комплектацию
- Железобетонные пустотные плиты перекрытия
Входит в комплектацию
- Стропильная система, обработанная огнебиозащитными составами. Гидро–ветрозащита
- Покрытие - профиль декоративный Монтерра-X по деревянным стропилам, с защитой от гниения и возгорания
- Обшивка фронтонных и карнизных свесов перфорированными пластиковыми софитами
- Водосточная система из ПВХ
- Снегозадержатели
- Минераловатный утеплитель толщиной 200 мм
Не входит в комплектацию
- Пластиковые окна с двухкамерными стеклопакетами, профиль 70 мм
- Пластиковые подоконники
- Уличные отливы, окрашенные в цвет профиля
Не входит в комплектацию
- Вентиляционные выходы с утеплением
- Система вентиляции из ПВХ
- Кирпичный каминный дымоход с декоративным колпаком
Не входит в комплектацию
- Котел (газовый либо электрический)
- Алюминиевые секционные радиаторы отопления
- Водяные теплые полы (для ГАЗОВЫХ котлов) в местах укладки напольной плитки (кроме котельной)
Входит в комплектацию
- Вывод питающего медного кабеля в доме
- Контур заземления
- Разводка электрических и ТВ кабелей внутри дома с установленными подрозетниками
- Электрощит внутри дома с автоматами
- Карболитовые патроны с лампочками
- Розетки и выключатели
Входит в комплектацию
- Вывод водопроводной трубы в котельной (от колодца)
- Выводы ГВС и ХВС в местах установки сантехнических приборов
- Магистральный фильтр очистки воды
- Гидроаккумулятор с блоком автоматики
- Ванна, смеситель для ванны и душевая кабина
- Унитаз
- Раковина с пьедесталом
- Смесители для раковин
Входит в комплектацию
- Вывод канализационной трубы от котельной до внешнего края фундамента (+1 м)
- Станция биологической очистки на 5 человек постоянного проживания
Не входит в комплектацию
- Штукатурка стен с армированием стеклотканевой сеткой
- Стяжка полов с утеплением и гидроизоляцией
- Межкомнатные перегородки из газобетона 625*250*100 D400
- Армирование внешних углов
- Шпатлевка стен в 2 слоя со шлифовкой
- Пластиковые откосы окон и входных дверей
- Окраска стен в 2 слоя
- Натяжные потолки
- Межкомнатные двери в комплекте с ручками, петлями, доборами и наличниками
- Межэтажная деревянная лестница без окраски
- Плинтуса из ПВХ с кабель–каналом
- Ламинат (класс не менее 32)
- Плитка напольная
- Плитка настенная
- Порожки
Входит в комплектацию
- Свайно–ростверковый на забивных железобетонных сваях С 30.20 (высота ростверка ≥ 400 мм, размер сваи - 200*200*3000мм)
Входит в комплектацию
- Внешние несущие стены из газобетона 625*250*300 D300
Внутренние несущие стены из газобетона 625*250*250 D400 и/или 625*250*300 D300 - Облицовка фасада
- Крыльцо с бетонными ступенями и навесом
- Терраса крытая, не остекленная, с деревянными окрашенными стойками (если предусмотренно проектом)
- Входная металлическая дверь
- Отделка цоколя и ступеней крыльца
Входит в комплектацию
- Железобетонные пустотные плиты перекрытия
Входит в комплектацию
- Стропильная система, обработанная огнебиозащитными составами. Гидро–ветрозащита
- Покрытие - профиль декоративный Монтерра-X по деревянным стропилам, с защитой от гниения и возгорания
- Обшивка фронтонных и карнизных свесов перфорированными пластиковыми софитами
- Водосточная система из ПВХ
- Снегозадержатели
- Минераловатный утеплитель толщиной 200 мм
Входит в комплектацию
- Пластиковые окна с двухкамерными стеклопакетами, профиль 70 мм
- Уличные отливы, окрашенные в цвет профиля
- Пластиковые подоконники
Входит в комплектацию
- Вентиляционные выходы с утеплением
- Система вентиляции из ПВХ
- Кирпичный каминный дымоход с декоративным колпаком
Не входит в комплектацию
- Котел (газовый либо электрический)
- Алюминиевые секционные радиаторы отопления
- Водяные теплые полы (для ГАЗОВЫХ котлов) в местах укладки напольной плитки (кроме котельной)
Входит в комплектацию
- Вывод питающего медного кабеля в доме
- Контур заземления
- Разводка электрических и ТВ кабелей внутри дома с установленными подрозетниками
- Электрощит внутри дома с автоматами
- Карболитовые патроны с лампочками
- Розетки и выключатели
Входит в комплектацию
- Вывод водопроводной трубы в котельной (от колодца)
- Выводы ГВС и ХВС в местах установки сантехнических приборов
- Магистральный фильтр очистки воды
- Гидроаккумулятор с блоком автоматики
- Ванна, смеситель для ванны и душевая кабина
- Унитаз
- Раковина с пьедесталом
- Смесители для раковин
Входит в комплектацию
- Вывод канализационной трубы от котельной до внешнего края фундамента (+1 м)
- Станция биологической очистки на 5 человек постоянного проживания
Не входит в комплектацию
- Штукатурка стен с армированием стеклотканевой сеткой
- Стяжка полов с утеплением и гидроизоляцией
- Межкомнатные перегородки из газобетона 625*250*100 D400
- Армирование внешних углов
- Шпатлевка стен в 2 слоя со шлифовкой
- Пластиковые откосы окон и входных дверей
- Окраска стен в 2 слоя
- Натяжные потолки
- Межкомнатные двери в комплекте с ручками, петлями, доборами и наличниками
- Межэтажная деревянная лестница без окраски
- Плинтуса из ПВХ с кабель–каналом
- Ламинат (класс не менее 32)
- Плитка напольная
- Плитка настенная
- Порожки
Входит в комплектацию
- Свайно–ростверковый на забивных железобетонных сваях С 30.20 (высота ростверка ≥ 400 мм, размер сваи - 200*200*3000мм)
Входит в комплектацию
- Внешние несущие стены из газобетона 625*250*300 D300
Внутренние несущие стены из газобетона 625*250*250 D400 и/или 625*250*300 D300 - Облицовка фасада
- Крыльцо с бетонными ступенями и навесом
- Терраса крытая, не остекленная, с деревянными окрашенными стойками (если предусмотренно проектом)
- Входная металлическая дверь
- Отделка цоколя и ступеней крыльца
Входит в комплектацию
- Железобетонные пустотные плиты перекрытия
Входит в комплектацию
- Стропильная система, обработанная огнебиозащитными составами. Гидро–ветрозащита
- Покрытие - профиль декоративный Монтерра-X по деревянным стропилам, с защитой от гниения и возгорания
- Обшивка фронтонных и карнизных свесов перфорированными пластиковыми софитами
- Водосточная система из ПВХ
- Снегозадержатели
- Минераловатный утеплитель толщиной 200 мм
Входит в комплектацию
- Пластиковые окна с двухкамерными стеклопакетами, профиль 70 мм
- Пластиковые подоконники
- Уличные отливы, окрашенные в цвет профиля
Входит в комплектацию
- Вентиляционные выходы с утеплением
- Система вентиляции из ПВХ
- Кирпичный каминный дымоход с декоративным колпаком
Входит в комплектацию
- Котел (газовый либо электрический)
- Алюминиевые секционные радиаторы отопления
- Водяные теплые полы (для ГАЗОВЫХ котлов) в местах укладки напольной плитки (кроме котельной)
Входит в комплектацию
- Вывод питающего медного кабеля в доме
- Контур заземления
- Разводка электрических и ТВ кабелей внутри дома с установленными подрозетниками
- Электрощит внутри дома с автоматами
- Карболитовые патроны с лампочками
- Розетки и выключатели
Входит в комплектацию
- Вывод водопроводной трубы в котельной (от колодца)
- Выводы ГВС и ХВС в местах установки сантехнических приборов
- Магистральный фильтр очистки воды
- Гидроаккумулятор с блоком автоматики
- Ванна, смеситель для ванны и душевая кабина
- Унитаз
- Раковина с пьедесталом
- Смесители для раковин
Входит в комплектацию
- Вывод канализационной трубы от котельной до внешнего края фундамента (+1 м)
- Станция биологической очистки на 5 человек постоянного проживания
Входит в комплектацию
- Штукатурка стен с армированием стеклотканевой сеткой
- Стяжка полов с утеплением и гидроизоляцией
- Межкомнатные перегородки из газобетона 625*250*100 D400
- Армирование внешних углов
- Шпатлевка стен в 2 слоя со шлифовкой
- Пластиковые откосы окон и входных дверей
- Окраска стен в 2 слоя
- Натяжные потолки
- Межкомнатные двери в комплекте с ручками, петлями, доборами и наличниками
- Межэтажная деревянная лестница без окраски
- Плинтуса из ПВХ с кабель–каналом
- Ламинат (класс не менее 32)
- Плитка напольная
- Плитка настенная
- Порожки
Написать в Мах


Вход/Регистрация